商業和家居深化設計有時都需要室內設計師才能使空間恰到好處。深化設計階段包括繪制設計立面圖及平面圖等,以幫助確定在給定空間內放置對象和其他元素的位置,這可以幫助設計師從整體上設想商業建筑設計或房屋計劃。
什么是立面圖
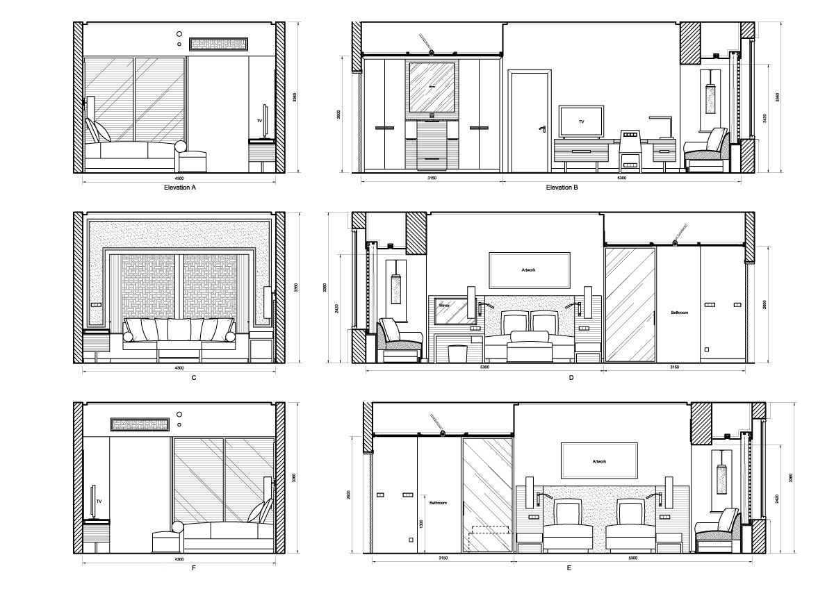
立面圖是一種正交投影——三維空間的二維表示。對于室內深化設計,它是不同細節的墻(或一系列墻)的二維圖。室內立面圖或剖面圖可以幫助設計師了解房間的前視圖或側視圖,隨著整個項目中細節的添加而變得復雜,例如應該放置電器或內置組件的位置。
深化設計圖紙繪制的目的
內部或外部立面可以幫助您在公裝空間設計或別墅設計過程中進行美學規劃。通過創建立面圖,您可以確定家具、固定裝置、天花板高度或您計劃包含在最終設計中的其他裝飾等物品的位置。立面圖通常是比例圖,在垂直平面上呈現房間的布局——從地板到水平線再到天花板——更準確地了解元素將在哪里以及如何組合在一起。
立面圖與平面圖
平面圖和立面圖都是設計師應該擁有的必要圖紙,以幫助充分設想他們的空間以及完成后的外觀。但是,每個都有其特定的好處:
平面圖就像一張藍圖。建筑室內設計理念開始通過平面圖變得更加具體,平面圖是一張技術圖紙,顯示房間的俯視圖以及某些設計元素(門、窗、樓梯)的布局。此建筑圖包含鳥瞰圖,可讓您查看對象和固定裝置之間的尺寸、測量值和空間關系,并可作為設計項目的初始藍圖。但是,平面圖只能從其固定角度告訴您有關空間的很多信息,這就是立面派上用場的地方。
立面圖非常適合從視線水平查看更具體的細節,這使得它對空間設計和其他類型的翻新特別有用。通過立面圖,您可以看到詳細信息,例如電器的放置位置和家具的移動。雖然平面圖提供了房間設計的總體布局,但立面圖讓業主進入房間,并能夠更清晰地看到完工后的外觀。
推薦信息 |
欄目最新 |
